Salta al contenuto principale

Ex Geografia - via Laura 48, Firenze

immagine apertura card

Rinasce l’edificio ex sede della facoltà di Geografia
Un ambizioso progetto di risanamento conservativo restituisce alla città e agli studenti il complesso di via Laura 48, coniugando sicurezza strutturale e innovazione architettonica. 

Dati tecnici del Progetto
Prima di entrare nel vivo del racconto, ecco i dettagli tecnici e amministrativi dell'intervento: 

  • Dirigente Area Programmazione e Sviluppo Grandi Opere: Arch. Cristina Tartari
  • Responsabile Unico del Progetto (RUP): Arch. Pier Luigi Ortolani
  • Direttore dei Lavori: Arch. Ilaria Gramigna
  • CUP: B19I22000340001
  • CIG: B76AD80D03
  • Importo Contratto: € 1.329.071,36 

Il contesto e l'obiettivo

il contesto

L'Università degli Studi di Firenze ha avviato il cantiere per il risanamento conservativo e il riordino funzionale della storica sede di "Ex Geografia". L'obiettivo è rispondere alle crescenti esigenze di spazi per la Scuola di Studi Umanistici e della Formazione e per il Dipartimento FORLILPSI (Formazione, Lingue, Intercultura, Letterature e Psicologia).
Non si tratta solo di ristrutturazione, ma di una vera e propria rifunzionalizzazione che trasformerà l'edificio in un edificio moderno, sicuro e accogliente.

Fig. - Render di progetto che mostra l'integrazione tra il nuovo intervento e il tessuto storico

Gli interventi: sicurezza e innovazione

render interno

Il progetto, finanziato con fondi d'Ateneo e fondi MUR, prevede lavori strutturali profondi per garantire la massima sicurezza sismica e statica, mantenendo inalterato il fascino dell'architettura fiorentina. Per operare al meglio, è stata condotta un'analisi dettagliata del degrado e dei materiali esistenti.  
I punti chiave dell'intervento sono: 
1. Consolidamento delle fondazioni e delle strutture portanti. 
2. Rifacimento totale della copertura, inclusa l'orditura primaria e secondaria del tetto. 
3. Rifunzionalizzazione degli interni per creare nuovi uffici e spazi di supporto.

Fig. - Sezione tecnica dello stato attuale che evidenzia la complessità dell'edificio.

Il cuore del progetto: la nuova Corte centrale

corte interna

Il vero elemento distintivo o "pivot" della nuova sede sarà la trasformazione della corte centrale. Questo spazio diventerà il fulcro dell'edificio: 
● verrà coperto da una moderna struttura in ferro e vetro a sé stante;
fungerà da reception, ingresso principale e invaso di luce naturale per tutti gli ambienti circostanti. 
Questa soluzione permetterà di vivere lo spazio interno in modo completamente nuovo, luminoso e protetto, pur rispettando i caratteri tipologici preesistenti.

Fig. - La suggestiva corte interna coperta, punto di incontro e luce per la nuova sede

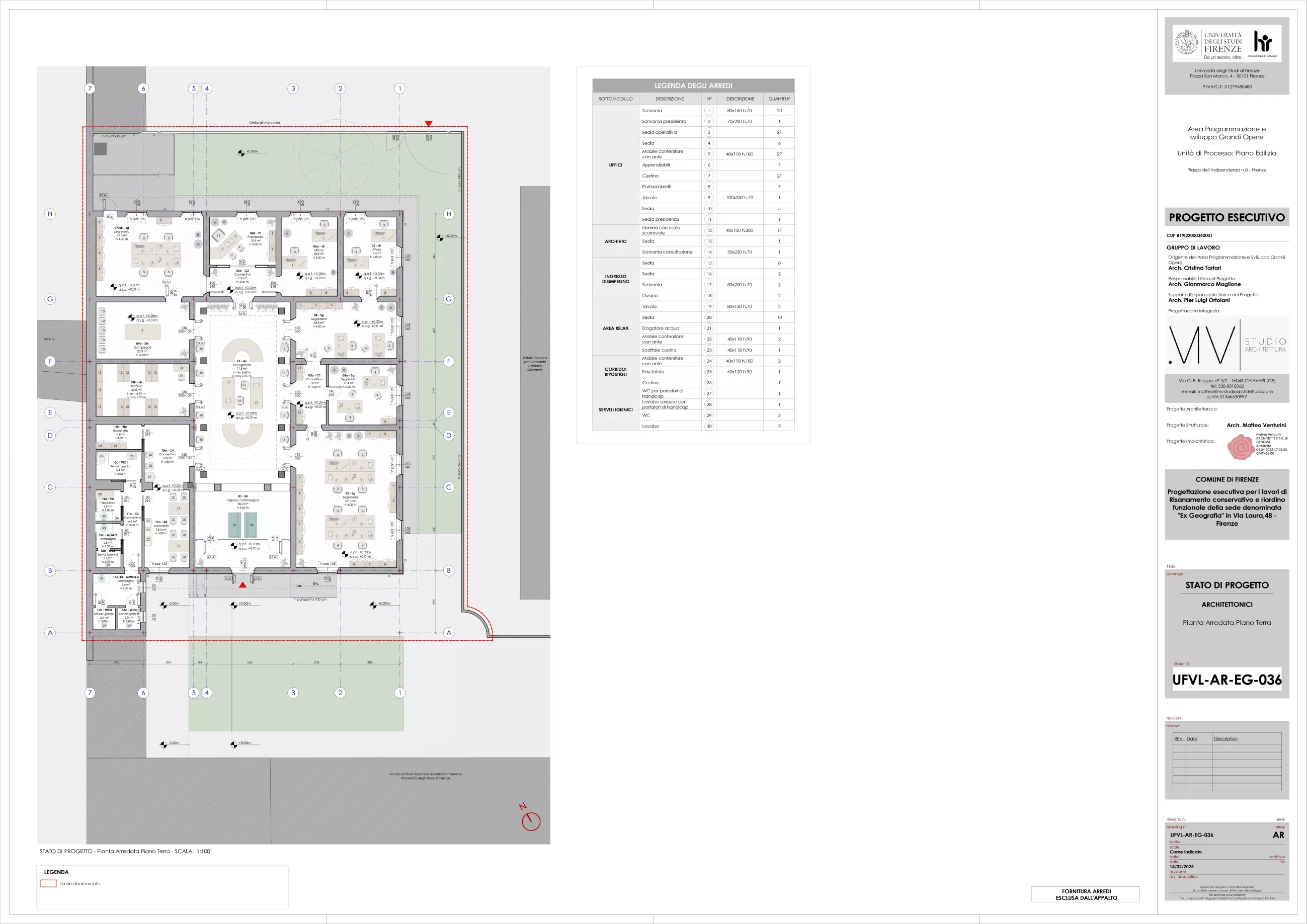
Planimetria, organizzazione e fasi di Lavoro

planimetria

L'organizzazione degli spazi interni è stata ripensata per massimizzare l'efficienza, come visibile nelle planimetrie di progetto che delineano i nuovi uffici e le aree comuni. 

Il cronoprogramma dei lavori è scandito in fasi precise per ottimizzare i tempi (durata stimata delle fasi principali): 
Demolizioni e rimozioni: 84 giorni 
Strutture in elevazione e copertura: circa 105 giorni 
Finiture e Impianti: completamento con intonaci, infissi e dotazioni tecnologiche. 

L'esecuzione è affidata a LA CASTELLANA SOCIETÀ COOPERATIVA, sotto l'alta sorveglianza dell'Area Programmazione e Sviluppo Grandi Opere dell'Ateneo.

Fig. - Planimetria di progetto con la nuova distribuzione di arredi e di funzioni