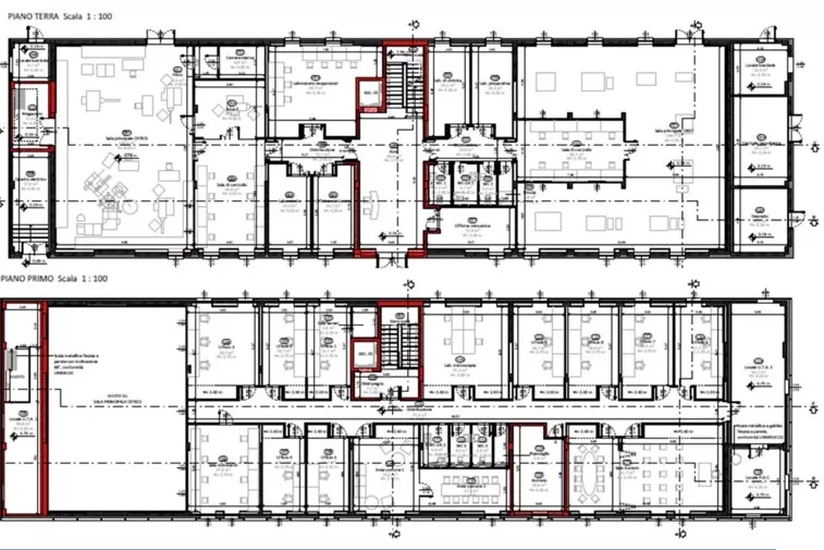
Ricerca e innovazione al Campus Sesto FiorentinoUn nuovo complesso all'avanguardia per la microscopia elettronica e la cristallografia strutturale arricchisce il campus universitario, coniugando alta tecnologia e sostenibilità.Dati salienti del progettoDirigente Area Programmazione e Sviluppo Grandi Opere: Arch. Cristina TartariResponsabile Unico del Progetto (RUP): Arch. Gianmarco MaglioneImporto di Quadro Economico: € 6.239.974,88Finanziamento: Risorse fondo edilizia universitaria D.M. 1274/2021 e cofinanziamento di Ateneo Il contesto e l'obiettivo L'area di intervento nel Campus Sesto Fiorentino: prospetti longitudinali dell’edificioL'Università degli Studi di Firenze è impegnata in un programma di ammodernamento e ampliamento con la realizzazione di un nuovo edificio destinato ad accogliere due centri di eccellenza: il CeTeCS (Centro di Servizi di Microscopia Elettronica e Microanalisi) e il CRIST (Centro di Cristallografia Strutturale).L'intervento nasce per colmare l'attuale deficit di spazi dedicati alla ricerca e alla didattica, con l'obiettivo strategico di potenziare le attività scientifiche dell'Ateneo all'interno del Campus Sesto Fiorentino. Non si tratta di un semplice ampliamento, ma della creazione di un polo tecnologico altamente specializzato. Il progetto: tecnologia e funzionalità Il progetto esecutivo prevede la costruzione di un fabbricato principale sviluppato su due livelli e di un volume tecnico dedicato, collegati tra loro per garantire la massima efficienza operativa.Spazi per l'Alta TecnologiaIl piano terra, tra le altre funzioni, ospiterà la sala principale del CeTeCS e del CRIST, progettata per accogliere otto diverse macchine a raggi X e microscopi elettronici. Sono previste sale di controllo separate da pareti vetrate per monitorare le attività in sicurezza e aree di coworking al piano superiore per l'analisi dati.Un edificio separato su via Luigi Gherri ospiterà le infrastrutture tecniche: cabina elettrica, gruppo elettrogeno, centrale per l'aria compressa e un impianto avanzato per il recupero dell'elio gassoso.Piano terra e piano primo in pianta Innovazione costruttiva e sostenibilità L'edificio è stato concepito con criteri moderni di sostenibilità e sicurezza:Strutture realizzate in cemento armato con fondazioni a travi rovesce per rispettare il vincolo archeologico dell'areaLa copertura piana ospiterà un impianto fotovoltaico, contribuendo al fabbisogno energetico dell'edificio senza impatto visivo dalla stradaPavimentazioni industriali ad alta resistenza per le sale macchine e gres per gli uffici, garantendo durabilità e pulizia Organizzazione dei lavori e tempistica Il cronoprogramma e l'organizzazione del cantiere sono stati definiti per ottimizzare i tempi, includendo anche la completa sistemazione delle aree esterne con nuovi parcheggi, marciapiedi e reti di urbanizzazione dedicate. La tempistica di cantiere prevede 480 giorni naturali e consecutivi di lavoro ed ha avuto inizio alla fine del 2025.